GS Tarmstedt
Erweiterung und Umbau
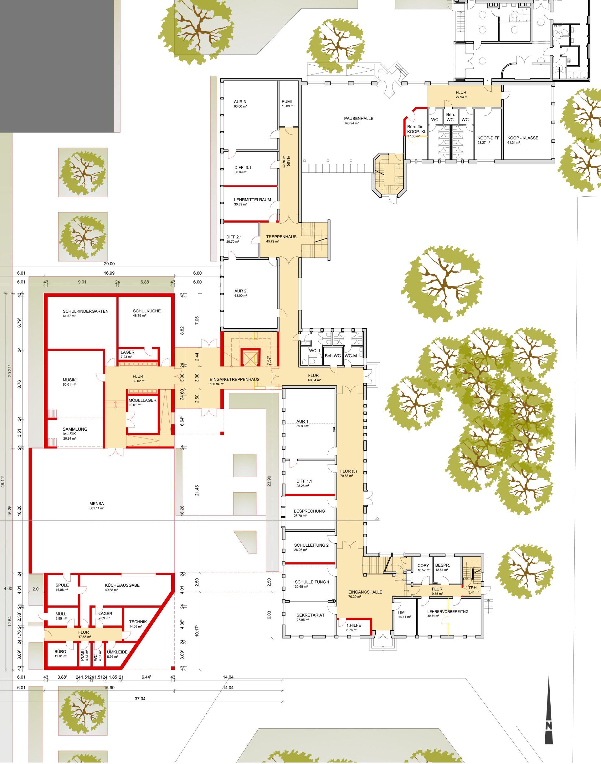
Aufgrund gestiegener Schülerzahlen, Einführung der Inklusion und Ganztagsangebote hat sich an der Grundschule Tarmstedt umfassender Raumbedarf ergeben.
Daher wird parallel zum Hauptgebäude eine zweigeschossige Erweiterung platziert. Es entsteht ein Eingangshof mit zentral gelegenem Haupteingang und barrierefreier Erschließung aller Gebäudeteile. Mit neuem Treppenhaus und obergeschossiger Brückenanbindung an den Bestand entsteht ein effizientes Erschließungssystem, welches zugleich brandschutztechnische Mängel im Bestand behebt.
Im Erdgeschoss der Erweiterung werden Mensa, Fachräume und Schulkindergarten, im Obergeschoss Unterrichts- und Differenzierungsräume angeordnet. Im Dachgeschoss wird die vergrößerte Bibliothek untergebracht. Im Gebäudebestand werden zur Optimierung der funktionalen Zuordnungen Umbaumaßnahmen durchgeführt.
Durch Gestaltung und Anordnung der Erweiterung wird der Solitärcharakter des historischen Altgebäudes erhalten. Die Verbindung erfolgt lediglich durch die gläserne Brücke, die gleichzeitig den Eingangshof definiert.
Daher wird parallel zum Hauptgebäude eine zweigeschossige Erweiterung platziert. Es entsteht ein Eingangshof mit zentral gelegenem Haupteingang und barrierefreier Erschließung aller Gebäudeteile. Mit neuem Treppenhaus und obergeschossiger Brückenanbindung an den Bestand entsteht ein effizientes Erschließungssystem, welches zugleich brandschutztechnische Mängel im Bestand behebt.
Im Erdgeschoss der Erweiterung werden Mensa, Fachräume und Schulkindergarten, im Obergeschoss Unterrichts- und Differenzierungsräume angeordnet. Im Dachgeschoss wird die vergrößerte Bibliothek untergebracht. Im Gebäudebestand werden zur Optimierung der funktionalen Zuordnungen Umbaumaßnahmen durchgeführt.
Durch Gestaltung und Anordnung der Erweiterung wird der Solitärcharakter des historischen Altgebäudes erhalten. Die Verbindung erfolgt lediglich durch die gläserne Brücke, die gleichzeitig den Eingangshof definiert.




