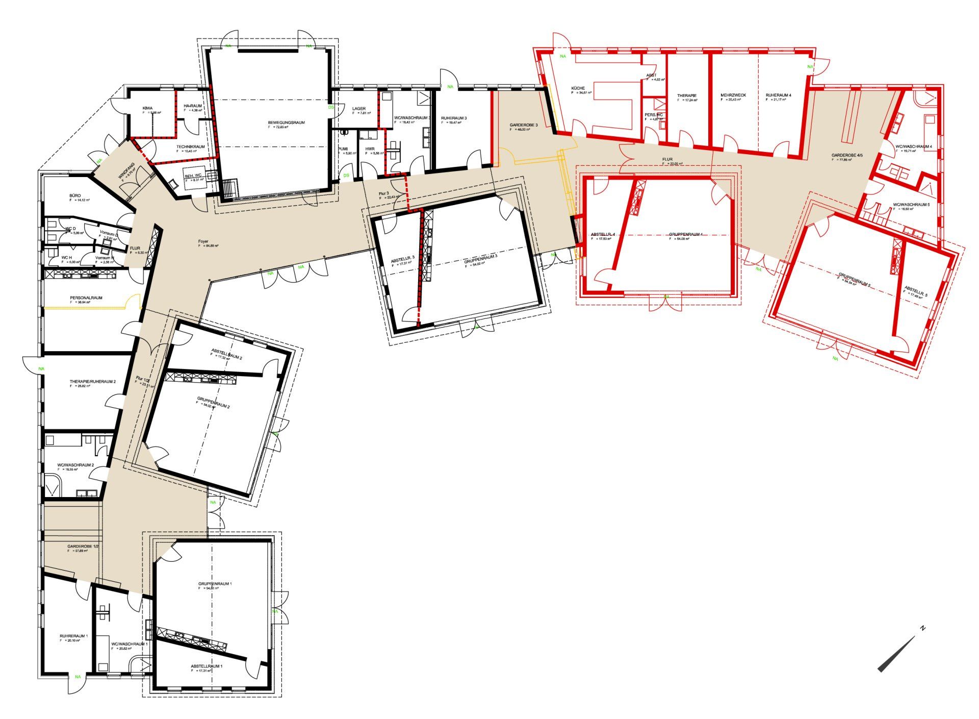
Kindertagesstätte Schwarmstedt 2.BA
Neubau eines 5-Gruppen- Kindergartens - 2. Bauabschnitt
Aufgrund der großen Nachfrage nach Betreuungsmöglichkeiten im Krippenbereich wird der Neubau des 3-Gruppen-Kindergartens in einem 2. Bauabschnitt um 2 Gruppenräume mit Nebenraumprogramm und Küche ergänzt.







