Unterkunftsgebäude 20 und 21 Bundeswehr
Sanierung und Umbau
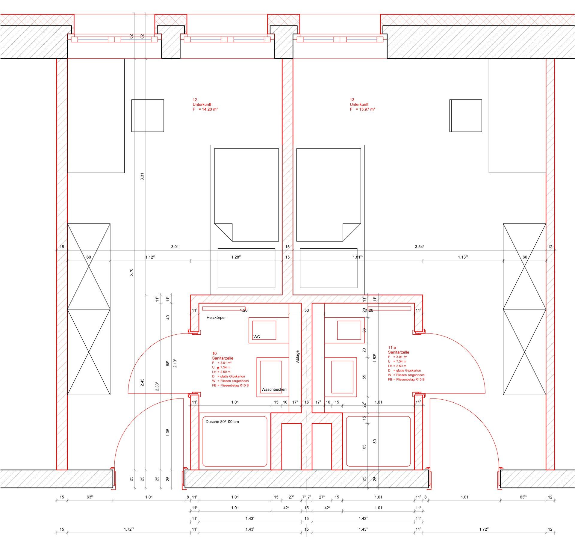
Die nahezu baugleichen Unterkunftsgebäude 20 und 21 stammen aus den 1920er Jahren. In Ihnen waren Mannschaftsunterkünfte mit Mehrbettzimmern und gemeinschaftlichen Sanitäranlagen untergebracht. Die Gebäude werden nach kompletter Entkernung im verbesserten Unterkunftsstandard für die Bundeswehr umgebaut und saniert. Jede Unterkunft besteht dabei aus einem Einzelzimmer mit direkt zugeordnetem Bad. Teeküche, Wasch-, Trocken-, Putzmittel- und Abstellräume stehen als gemeinschaftliche Einrichtungen zur Verfügung.
Im Zuge der Baumaßnahme werden die Gebäude durch umfangreiche energetische Verbesserungen an die Anforderungen der aktuellen Energieeinsparverordnung angepasst. Sämtliche Installationen werden durchgängig erneuert. Trotz der umfangreichen Baumaßnahmen bleibt der historische Charakter der Gebäude erhalten.
In jedem Gebäude entstehen 70, insgesamt in beiden Gebäuden 140 Unterkunftseinheiten nach dem aktuellsten Standard der Bundeswehr.
Im Zuge der Baumaßnahme werden die Gebäude durch umfangreiche energetische Verbesserungen an die Anforderungen der aktuellen Energieeinsparverordnung angepasst. Sämtliche Installationen werden durchgängig erneuert. Trotz der umfangreichen Baumaßnahmen bleibt der historische Charakter der Gebäude erhalten.
In jedem Gebäude entstehen 70, insgesamt in beiden Gebäuden 140 Unterkunftseinheiten nach dem aktuellsten Standard der Bundeswehr.



